2 bedroom
1 bathroom
1 reception
2 bedroom
1 bathroom
1 reception
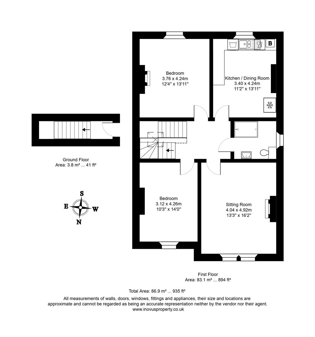
HallwayAccessed via its own private hall with stairs leading up to the living areas, this entrance immediately conveys a sense of exclusivity and style. Finished with statement lighting and a feature mirror, it creates a welcoming, well-considered first impression that sets the scene for the rest of the home.
Lounge4.04 x 4.92 (13'3" x 16'1")An elegant and spacious living room with a wide bay window providing lovely views over Napier Road. Bathed in natural light, it showcases period charm with its decorative fireplace, detailed coving, and classic wall panelling—offering a refined space for both relaxing and entertaining.
Kitchen3.40 x 4.24 (11'1" x 13'10")A contemporary and highly functional kitchen, well laid out with a comprehensive range of wall and base units for maximum storage. It includes quality appliances such as an electric oven, 5-burner gas hob, integrated dishwasher, washing machine, and space for an American-style fridge freezer—making it perfect for cooking and entertaining in style.
Bedroom One3.76 x 4.24 (12'4" x 13'10")A spacious and peaceful double bedroom positioned at the rear of the property for added privacy and quiet—ideal for restful nights. Beautiful wall panelling and a decorative fireplace give the room classic character and a touch of period elegance. This inviting retreat is perfectly suited for relaxation at the end of the day.
Bedroom Two3.12 x 4.26 (10'2" x 13'11")A bright and airy double room enjoying a front aspect with excellent natural light. Period features include a picture rail and coving, adding traditional charm. Ideal as a comfortable guest bedroom, second double, or spacious home office.
Shower RoomBeautifully finished with contemporary tiling, this stylish shower room features a walk-in enclosure with a sleek floating glass screen, elegant gold fittings for a touch of luxury, a modern vanity unit with basin, and a WC—offering both style and practicality.
Residents Only GardenResidents benefit from access to the attractive garden on Clyde Park —a well-kept communal outdoor space ideal for unwinding, socialising with neighbours, or enjoying a quiet moment in the fresh air, all in the heart of Redland’s desirable setting.
NotesLease is remainder of 999 years
Service Charge = £0 - the 3 owners pay for any maintenance as required.
No Ground Rent.
Share of Freehold.
EPC = D
Council Tax = C
Sitting_1.jpg
Kitchen_2.jpg
Kitchen_1.jpg
Bedroom1_1.jpg
Bedroom2_1.jpg
Bathroom_1.jpg
Sitting_3.jpg
Sitting_2.jpg
Bedroom1_2.jpg
Bedroom1_4.jpg
Bedroom1_5.jpg
Bedroom2_3.jpg
Drone_1.jpg
Drone_2.jpg
Exterior_1.jpg
Exterior_2.jpg
Hall_1.jpg
Hall_2.jpg
Kitchen_4.jpg
Oval.jpg



















