2 bedroom
1 bathroom
1 reception
2 bedroom
1 bathroom
1 reception
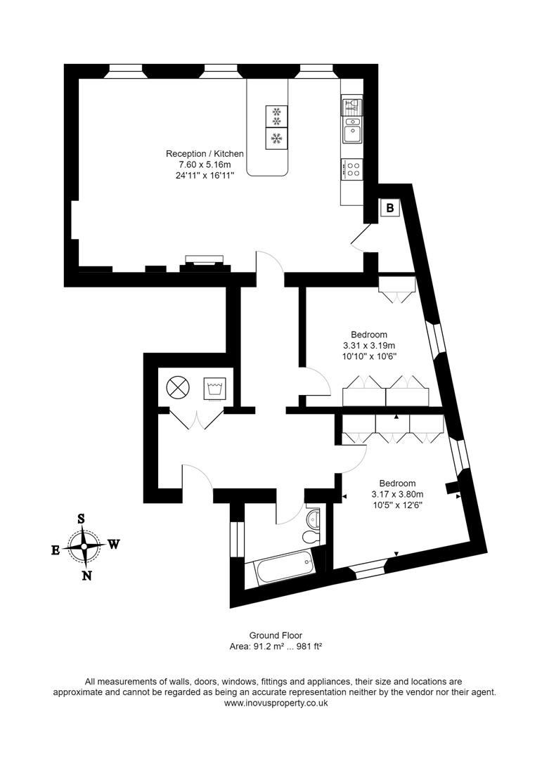
Lounge/Kitchen/Dining Room7.60 x 5.16 (24'11" x 16'11")This stylish room has lovely views over the communal gardens and is light and bright so provides a great living space and is perfect for entertaining. The modern kitchen has a range of wall and base units and is fully equipped with all white goods including electric oven, ceramic hob, fridge, freezer and dishwasher. There is also a very handy walk-in storage cupboard/pantry.
Bedroom One3.17 x 3.80 (10'4" x 12'5")This bedroom is situated to the front of the building and has a window to the front and side. There are built-in wardrobes which provide convenient storage.
Bedroom Two3.31 x 3.19 (10'10" x 10'5")This bedroom is situated to the side of the building so enjoys views over the communal gardens. There are built-in wardrobes and a useful storage cupboard.
BathroomThe modern bathroom has a white suite which includes, bath with shower over, wc and basin.
HallwayThe hallway has a cupboard housing the washing machine.
OutsideTo the front is a small courtyard and the apartment has its own entrance.
There is an allocated parking space and residents have access to the communal gardens.
Reception_1.jpg
Kitchen_1.jpg
Kitchen_2.jpg
Reception_2.jpg
Reception_3.jpg
Bedroom1_1.jpg
Bedroom1_2.jpg
Bedroom2_1.jpg
Bedroom2_2.jpg
Bathroom.jpg
Exterior_1.jpg
Exterior_2.jpg
Gardens_1.jpg
Gardens_2.jpg
Hallway.jpg
Reception_4.jpg
Reception_5.jpg
















