4 bedroom
2 bathroom
2 receptions
4 bedroom
2 bathroom
2 receptions
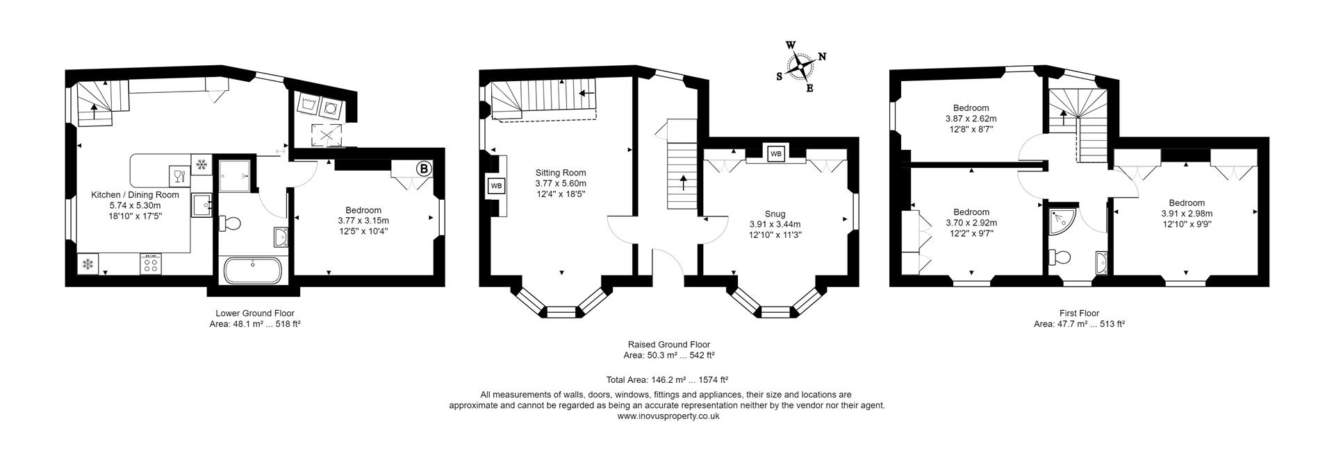
Sitting Room3.77 x 5.60 (12'4" x 18'4")This light bright room has a lovely contemporary feel aided by the dual aspect with bay window to the front and two windows to the side aspect. The room is decorated in modern, neutral tones and has wooden parquet flooring, a log burner and very impressive glass balustrade on the open staircase leading down to the lower ground
floor.
Snug3.91 x 3.44 (12'9" x 11'3")This impressive room is currently utilised as a snug/or cinema room and has a lovely cosy feel to it. This is aided by the parquet flooring, 2nd log burner, cast iron radiators and darker contemporary decor. Again dual aspect with a window to the side overlooking the enclosed rear garden, and bay to front over looking Goldney Road.
Kitchen/Dining Room5.74 x 5.30 (18'9" x 17'4")On the lower ground floor this is a great entertaining space for the sociable cook. The modern kitchen has a range of wall and base units, Neff appliances including double oven, fridge/freezer, dishwasher and induction hob. There are two windows to the side aspect with one giving incredible and unexpected views over Bristol, a nice touch for a lower ground floor room. The dining area is well designed and incorporates a range of built-in storage and shelving units.
Utility RoomVery useful utility room providing space for and plumbing for washing machine and tumble dryer and giving access to the rear garden.
Fourth Bedroom3.77 x 3.15 (12'4" x 10'4")This lower ground floor room adds an interesting option to the house and is served by a luxury bathroom. Currently set up as a home gym, this room could be used as a playroom but gives a great option to provide accommodation for an older relative giving them some personal space while still being part of the family home or offering a great space to an independent teenager.
BathroomA great addition to the house this luxurious bathroom is fully tiled and has a bath and shower cubicle, basin within vanity unit and wc.
Bedroom One3.91 x 2.98 (12'9" x 9'9")This double bedroom is decorated in modern tones and has wooden flooring, there is a sash window to the front aspect and built-in wardrobes.
Bedroom Two3.70 x 2.92 (12'1" x 9'6")This double bedroom with window to front aspect has buit-in wardrobes and is decorated in modern tones with wooden flooring.
Bedroom Three3.87 x 2.62 (12'8" x 8'7")This double bedroom is decorated in modern tones, with wooden flooring and enjoys a dual aspect with windows to rear and side aspect.
Shower RoomLuxurious shower rom with contemporary styling, walk-in shower cubicle, basin set in vanity unit and wc.
OutsideTo the side of the property is a private walled garden which is terraced with a lovely paved seating area just great for summer barbeques. There are raised flower beds and a small lawed area. To the rear are a number of storage sheds, bin store and direct access to Goldney Road.
Exterior_1.jpg
Reception1_1.jpg
Reception2_2.jpg
Kitchen_1.jpg
Kitchen_2.jpg
Bedroom1.jpg
Bedroom2_1.jpg
Bedroom4.jpg
Bathroom.jpg
Garden_1.jpg
Garden_2.jpg
Kitchen_3.jpg
Kitchen_4.jpg
Kitchen_5.jpg
Reception1_2.jpg
Reception2_1.jpg
Bedroom2_2.jpg
Shower.jpg
Stairs.jpg
View.jpg
Exterior_2.jpg




















