4 bedroom
3 bathroom
1 reception
4 bedroom
3 bathroom
1 reception
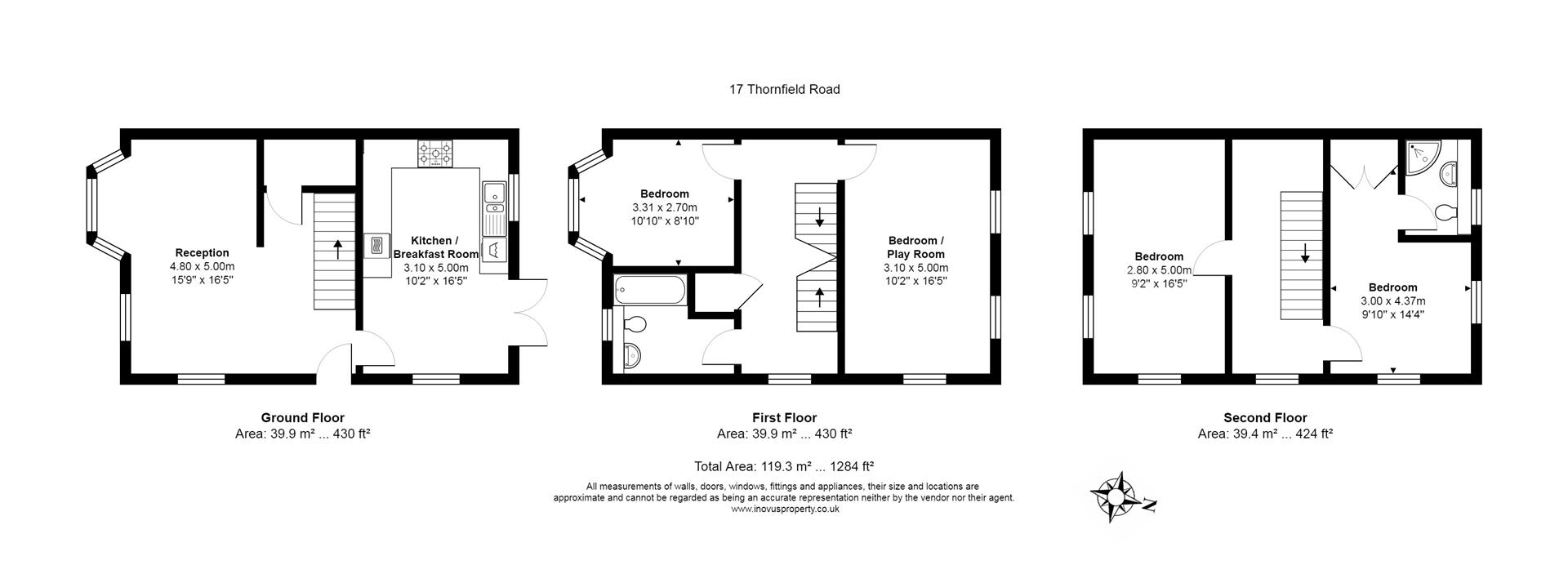
Ground floor lounge4.80m x 5.00m (15'8" x 16'4")This good sized lounge has windows to the front and side bringing in plenty of light. It is neutrally decorated with wooden flooring.
Kitchen3.10m x 5.00m (10'2" x 16'4")This lovely kitchen is stylishly presented and has integrated appliances including a gas hob, double oven, fridge/freezer, dishwasher and washing machine. There is ample space for a table and chairs and patio doors onto the rear garden.
Bedroom/Second lounge3.10m x 5.00m (10'2" x 16'4")This room could either be a very good sized bedroom or maybe a more formal lounge, depending on your requirements. With neutral decoration and carpets the room has windows to front and side bringing in plenty of light.
Bedroom Three3.31m x 2.70m (10'10" x 8'10")This double bedroom has neutral decoration and carpets, and windows to the front of the house.
Family bathroomThe modern family bathroom has a window to the front of the house. It contains a bath with shower over, wc and basin.
Bedroom Two2.80m x 5.00m (9'2" x 16'4")Again a very good sized double bedroom with neutral decoration and carpets and windows to the front and side.
Master bedroom3.00m x 4.37m (9'10" x 14'4")The master bedroom has windows to the front and side, built-in wardrobes and en-suite shower room. The en-suite has a good sized walk-in shower cubicle, basin and wc. This modern shower room has a window to the rear of the house.
OutsideTo the rear of the house is a private garden with artificial turf. There is also an allocated Car Port which could accommodate two cars and with some storage space at the rear.
Exterior_2.jpg
Exterior_1.jpg
Exterior_4.jpg
Reception2.jpg
Reception1_1.jpg
Kitchen_2.jpg
Kitchen_1.jpg
Reception1_2.jpg
Bedroom1.jpg
Bedroom2.jpg
Bedroom3.jpg
Ensuite.jpg
Bathroom.jpg
Garden.jpg
Car_Port.jpg














