Available for Professional Sharers or Students | Spacious 4-Double-Bedroom House Near Gloucester Road | Solar Panels | Private garden with maintenance paid for by Landlord
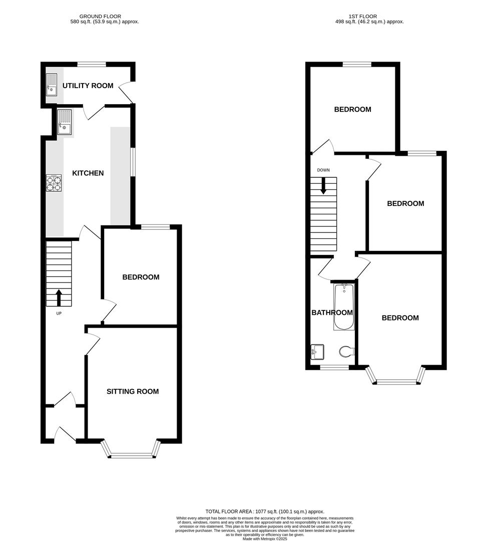
The accommodation features a separate lounge, perfect for socialising, a well-equipped kitchen, and a handy utility room for additional storage and laundry. The bathroom includes a shower over bathtub, providing flexibility for busy mornings and there is a separate guest wc on the ground floor.
All bedrooms are genuine doubles and the property comes fully furnished, ready for you to move in and make your own.
To the rear, you'll find a private garden, ideal for relaxing or outdoor study sessions. The home also benefits from electric solar panels, helping reduce energy costs.
The garden maintenance is paid for by the landlord so you can enjoy it throughout your tenancy.
Located just moments from vibrant Gloucester Road with its independent shops, cafés, bars and excellent transport links, this well-presented four double bedroom property offers a fantastic balance of comfort, convenience and practicality. Ideal for groups studying at UWE or University of Bristol, both within easy commuting distance. Also perfect for professional sharers.
A great home in a prime location, early viewing recommended.
4 bed house to rent in Chapter Walk, Bristol, BS6
This contemporary Town House is situated in a secure gated development in Redland and close to the amenities of Whiteladies Road, motorway networks and within...
Enter your details below to arrange a call back to view this property.
Share with a friend
Enter your friends and your own details to send them details of this property.
Terms and fees apply
Tenant Fees Schedule
New Assured Shorthold Tenacies (ASTs) signed on or after 1 June 2019
Holding Deposit (per tenancy)
One week’s rent. This is to reserve a property. Please Note: This will be withheld if any relevant person (including any guarantor(s)) withdraw from the tenancy, fail a Right-to-Rent check, provide materially significant false or misleading information, or fail to sign their tenancy agreement (and / or Deed of Guarantee) within 15 calendar days (or other Deadline for Agreement as mutually agreed in writing).
Security Deposit (per tenancy. Rent under £50,000 per year)
Five weeks’ rent. This covers damages or defaults on the part of the tenant during the tenancy.
Security Deposit (per tenancy. Rent of £50,000 or over per year)
Six weeks’ rent. This covers damages or defaults on the part of the tenant during the tenancy.
Unpaid Rent
Interest at 3% above the Bank of England Base Rate from Rent Due Date until paid in order to pursue non-payment of rent. Please Note: This will not be levied until the rent is more than 14 days in arrears.
Lost Key(s) or other Security Device(s)
Tenants are liable to the actual cost of replacing any lost key(s) or other security device(s). If the loss results in locks needing to be changed, the actual costs of a locksmith, new lock and replacement keys for the tenant, landlord any other persons requiring keys will be charged to the tenant. If extra costs are incurred there will be a charge of £15 per hour (inc. VAT) for the time taken replacing lost key(s) or other security device(s).
Variation of Contract (Tenant's Request)
£50 (inc. VAT) per agreed variation. To cover the costs associated with taking landlord’s instructions as well as the preparation and execution of new legal documents.
Change of Sharer (Tenant's Request)
£50 (inc. VAT) per replacement tenant or any reasonable costs incurred if higher. To cover the costs associated with taking landlord’s instructions, new tenant referencing and Right-to-Rent checks, deposit registration as well as the preparation and execution of new legal documents.
Early Termination (Tenant's Request)
Should the tenant wish to leave their contract early, they shall be liable to the landlord’s costs in re-letting the property as well as all rent due under the tenancy until the start date of the replacement tenancy. These costs will be no more than the maximum amount of rent outstanding on the tenancy.
Please ask a member of staff if you have any questions about our fees
Client Money Protection: Propertymark (see below)
Independent Redress: The Property Ombudsman
How do we ensure our tenants are protected?
We are a registered member of the Propertymark Client Money Protection Scheme. This is a client money protection scheme to ensure your money is handled in the correct manner.