2 bedroom
1 bathroom
1 reception
2 bedroom
1 bathroom
1 reception
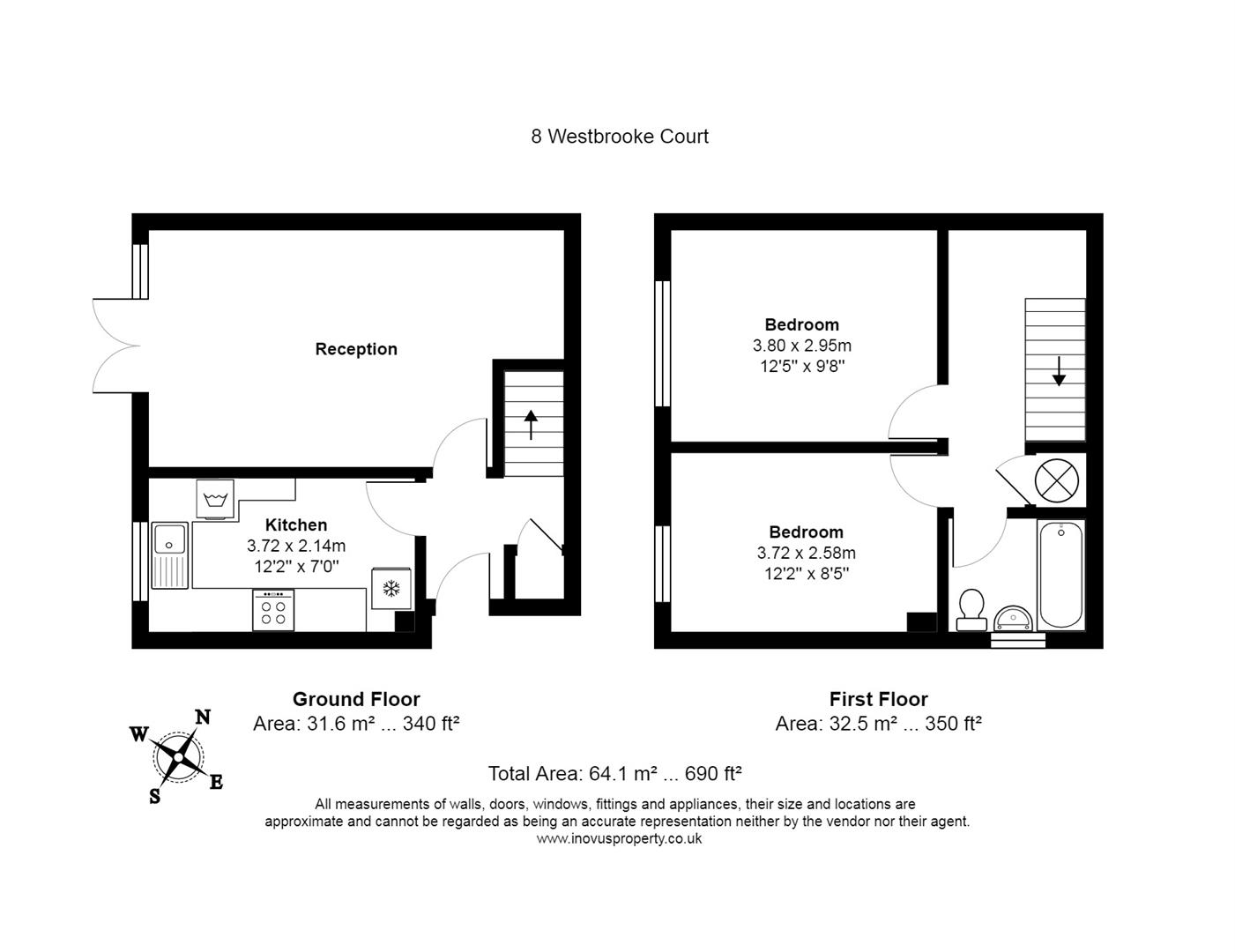
Lounge5.8m x 3.3m (19'0" x 10'9")This really lovely sized lounge has plenty or room for a dining room table and chairs. There is neutral decoration and laminate flooring. The patio doors lead out to the South West facing garden.
Kitchen3.72m x 2.14 (12'2" x 7'0")Window to the garden. Range of wall and base units, electric oven and hob. Space for fridge/freezer and washing machine.
Bedroom One3.80m x 2.95m (12'5" x 9'8")Neutral decoration and carpet and window to garden.
Bedroom Two3.72m x 2.58m (12'2" x 8'5")Currently with pretty decoration for a child's room. This lovely room has a window over the garden and has laminate flooring.
bathroomNeutral decoration and window. Bath with electric shower over, wc and basin.
GardenPretty south west facing garden laid to lawn and with a decked seating area and small shed. There is gated access directly to the garden.
ParkingThe maisonette has an allocated parking space and a secondary/visitor parking permit.
Exterior_1.jpg
Reception_2.jpg
Reception_1.jpg
Reception_3.jpg
Kitchen.jpg
Bedroom1.jpg
Bedroom2.jpg
Bathroom.jpg
Exterior_2.jpg
Garden_1.jpg
Garden_2.jpg
Wharf_1.jpg
Wharf_2.jpg
Wharf_3.jpg
Wharf_4.jpg
Wharf_5.jpg















