6 bedroom
2 bathroom
1 reception
6 bedroom
2 bathroom
1 reception
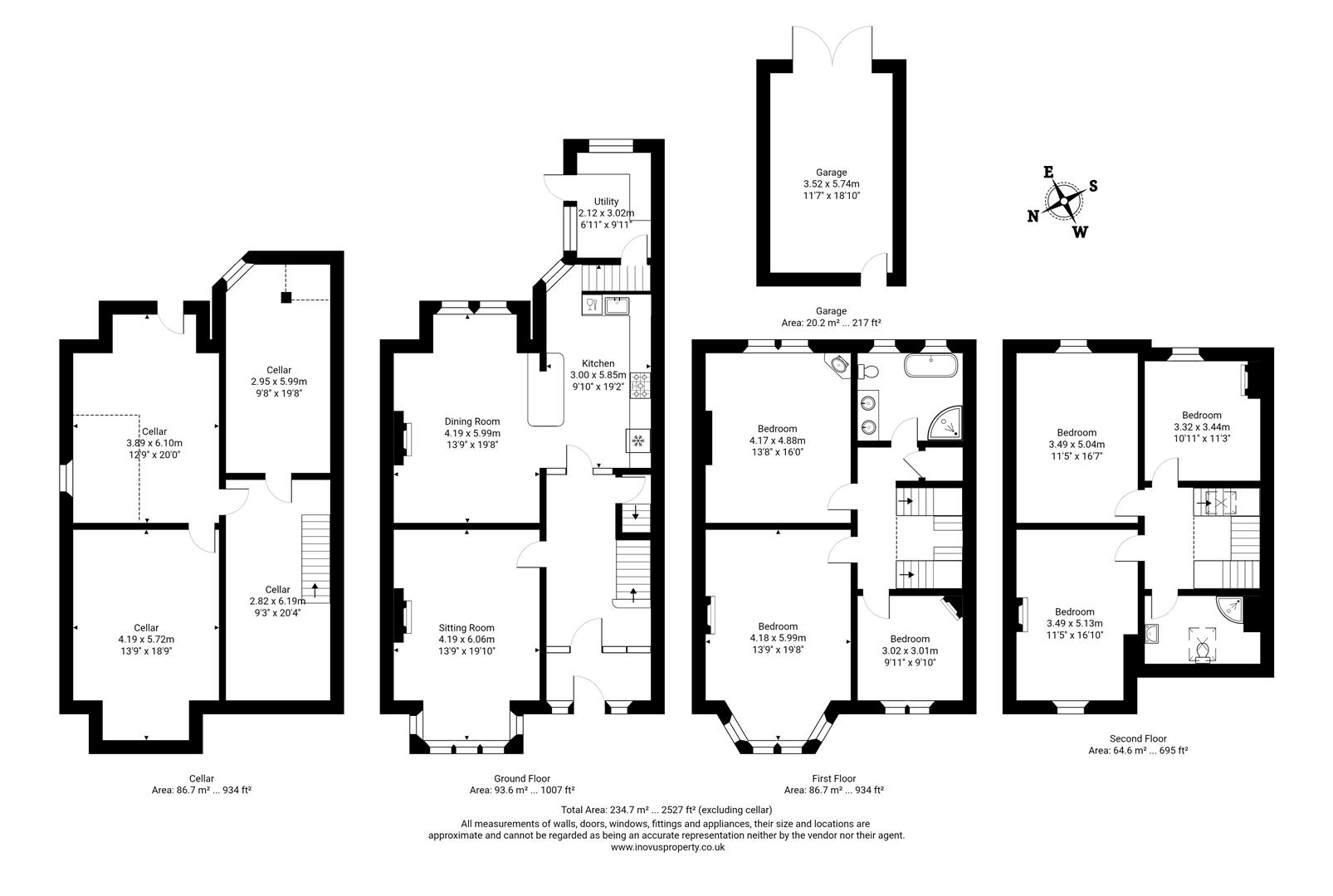
Sitting Room4.19 x 6.06m (13'8" x 19'10")An elegant bay-fronted reception room of excellent proportions, showcasing high ceilings, intricate cornicing, and double glazed sash windows that flood the space with natural light, creating a sophisticated yet welcoming setting.
Dining Room4.19 x 5.99 (13'8" x 19'7")A superb full-width entertaining space, beautifully proportioned and ideal for hosting, with ample room for a formal dining table and additional seating, all enhanced by attractive period detailing.
Kitchen3.00 x 5.85 (9'10" x 19'2")A well-designed and stylish kitchen, fitted with a comprehensive range of wall and base units and central breakfast bar and generous work surfaces. This open-plan space is perfectly suited to modern family living and entertaining. It is complemented by access to a separate utility room.
Utility Room2.12 x 3.02 (6'11" x 9'10")A highly practical and discreet space providing additional storage and appliance provision, ensuring the main kitchen remains both functional and uncluttered.
Bedroom One4.18 x 5.99 (13'8" x 19'7")A stunning principal bedroom, with double glazed bay window to the front aspect, generously sized and filled with natural light, offering a calm and luxurious retreat with ample space for freestanding furniture.
Bedroom Two4.17 x 4.88 (13'8" x 16'0")A beautifully proportioned double bedroom, enjoying a pleasant outlook with views across Bristol and offering excellent versatility as a guest suite or secondary principal room.
Bedroom Three3.02 x 3.01 (9'10" x 9'10")A spacious and light-filled double bedroom, with great views across Bristol, ideal for family living or equally suited to use as a refined home office.
Bedroom Four3.49 x 5.13 (11'5" x 16'9")A well-appointed bedroom with a bright and airy feel, perfectly suited as a child’s room, guest accommodation, or study.
Bedroom Five3.49 x 5.04 (11'5" x 16'6")A versatile and well-proportioned room, offering flexibility for use as a bedroom, nursery, or dedicated workspace. The upper floors all benefit from amazing views across Bristol.
Bedroom Six3.32 x 3.44 (10'10" x 11'3")An additional comfortable bedroom, ideal for larger families or those seeking further adaptable living space.
BathroomA beautifully appointed and generously proportioned family bathroom, elegantly designed with a contemporary roll-top bath, separate walk-in shower, WC, and twin basins set within a stylish vanity unit, combining luxury with everyday practicality.
Shower RoomThis stylish shower room is situated on the second floor and serves 3 bedrooms, it has a walk-in shower, basin in vanity unit and wc.
CellarAn extensive cellar space offering exceptional storage capacity, with exciting potential for conversion or enhancement, subject to the necessary consents.
GarageA valuable addition, the garage provides secure parking or further storage, enhancing the practicality of this impressive home.
OutsideThe front garden features a lawn, mature planting, and an elegant magnolia tree, all combining to create a secluded approach from the road.
To the rear, the garden offers a lawn bordered by mature shrubs, providing a peaceful and private outdoor space, with a pathway leading through to the rear garage.
Drone_3.jpg
Sitting_1.jpg
Sitting_2.jpg
Dining_1.jpg
Dining_3.jpg
Kitchen_4.jpg
Kitchen_1.jpg
Bathroom1_1.jpg
Bedroom1_1.jpg
Bedroom1_3.jpg
Bedroom2_1.jpg
Bedroom2_2.jpg
Bedroom3_2.jpg
Bedroom3_1.jpg
Bedroom4.jpg
Bathroom1_2.jpg
Bathroom2.jpg
Dining_4.jpg
Drone_4.jpg
Drone_2.jpg
Exterior_1.jpg
Garden_2.jpg
Garden_1.jpg
Hall_1.jpg
Kitchen_3.jpg
Sitting_3.jpg
Exterior_3.jpg
Exterior_4.jpg



























