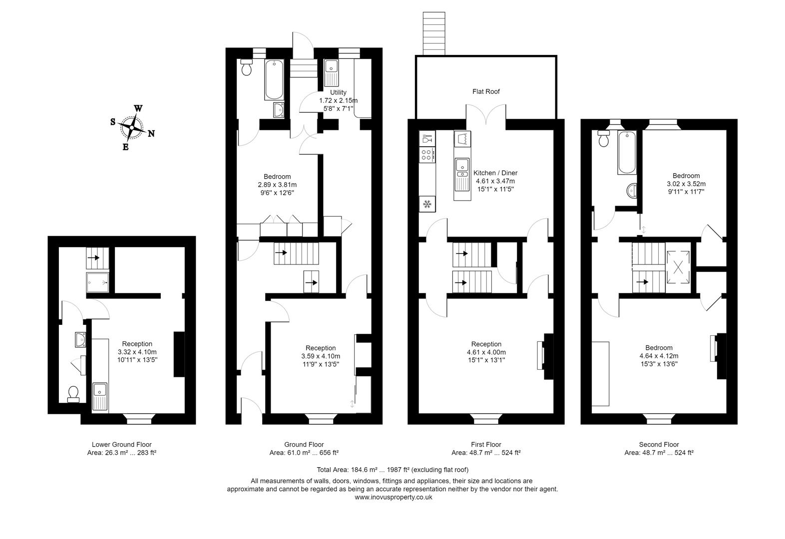
4 bedroom
2 bathroom
2 receptions
4 bedroom
2 bathroom
2 receptions
Basement Reception3.32 x 4.10 (10'10" x 13'5")
Hall Floor Reception3.59 x 4.10 (11'9" x 13'5")
Hall Floor Bedroom2.89 x 3.81 (9'5" x 12'5")
Hall Floor Kitchen1.72 x 2.15 (5'7" x 7'0")
First Floor Reception4.61 x 4.00 (15'1" x 13'1")
First Floor Kitchen/Diner4.61 x 3.47 (15'1" x 11'4")
Second Floor Bedroom4.64 x 4.12 (15'2" x 13'6")
Second Floor Bedroom Rear3.02 x 3.52 (9'10" x 11'6")
Exterior_1.jpg
FF_Reception_1.jpg
View.jpg
FF_Kitchen_1.jpg
FF_Kitchen_3.jpg
2F_Bathroom.jpg
2F_Bedroom1_1.jpg
2F_Bedroom1_2.jpg
2F_Bedroom1_3.jpg
2F_Bedroom1_4.jpg
2F_Bedroom2.jpg
Balcony.jpg
Drone_1.jpg
Drone_2.jpg
Drone_3.jpg
Drone_4.jpg
Drone_5.jpg
Exterior_2.jpg
FF_Kitchen_2.jpg
FF_Reception_2.jpg



















