4 bedroom
2 bathroom
1 reception
4 bedroom
2 bathroom
1 reception
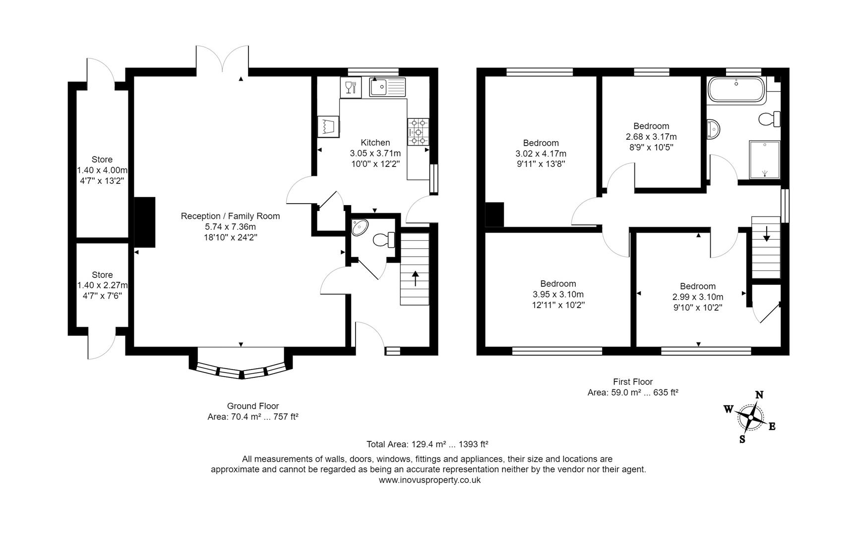
Lounge5.74 x 7.36 (18'9" x 24'1")This magnificent through lounge will provide a great family space, with room for relaxing, dining and entertaining. There is a bay window to the front aspect and patio doors to the rear garden.
Kitchen3.05 x 3.71 (10'0" x 12'2")This modern kitchen is fully equipped with a range of wall and base units, a range cooker, integrated dishwasher and washing machine and space for an American Style fridge/freezer. There is a glazed door giving access to the side of the house and garden.
Ground Floor Guest WCFully tiled with wc and basin.
Bedroom One3.95 x 3.10 (12'11" x 10'2")A good sized double bedroom with window to front aspect.
Bedroom Two3.02 x 4.17 (9'10" x 13'8")Double bedroom with window to rear aspect.
Bedroom Three2.99 x 3.10 (9'9" x 10'2")Double bedroom with neutral decoration and window to front aspect.
Bedroom Four2.68 x 3.17 (8'9" x 10'4")Neutral decoration and window to rear aspect.
BathroomStylish family bathroom with four piece bathroom suite. This immaculate bathroom has a contemporary suite with bath with central mixer tap, large walk-in shower cubicle, wc and basin. Window to rear aspect.
Outside
To front parking for numerous cars.
To sunny rear garden has a westerly aspect and is low maintenance. There is a stylish covered, sunken seating and bbq area which will be great for summer entertaining.
Exterior_1.jpg
Kitchen_1.jpg
Kitchen_2.jpg
Reception_1.jpg
Reception_2.jpg
Reception_3.jpg
Hallway.jpg
Bedroom1.jpg
Bedroom2.jpg
Bedroom3.jpg
Bedroom4.jpg
Bathroom.jpg
Exterior_2.jpg
Garden_1.jpg
Garden_2.jpg
View.jpg















